
Нефтегазосепараторы НГС
От -60 до 40 °C
до 9 баллов
ООО "НПО "Спецнефтемаш"
Типоразмеры в наличии:
Нефтегазовый сепаратор НГС — это оборудование, используемое при добыче нефти для отделения попутных газов от жидкого вещества при первичной очистке. Кроме того, нефтегазосепаратор очищает сам газ от капель посторонних примесей и в основном предназначен для очистки малозагазованых жидкостей.
НГС выглядит как горизонтальная цилиндрическая емкость и используется при следующих условиях:
- Давление – от 0,6 до 6,3 МПа;
- Объем – от 6,3 до 150 м3;
- Диаметр – от 1200 до 3400 мм.
Сфера применения нефтегазосепараторов
Сфера использования сепаратора НГС – энергетические комплексы, газораспределительные станции, нефтедобывающие установки, в нефтехимии и непосредственно на нефтегазовых месторождениях, где повышено содержание конденсата в веществе.
Конструкция и типы нефтегазосепараторов
Нефтегазосепаратор представляет собой горизонтальную цилиндрическую металлическую емкость с эллиптическими днищами и функциональными патрубками.
Газовые сепараторы бывают двух типов:
- нефтегазовые аппараты для сепарации с депульсатором;
- нефтегазовые аппараты для сепарации без депульсатора.
Они различаются тем, что в первом виде есть предварительный отбор газа, а во втором нет.
Кроме того, нефте газовые сепараторы типа НГС также изготавливаются с пеногасящей насадкой и без нее. Пеногасящая насадка сепарирует нефтяную пену.
Также типы нефтегазосепараторов разделяются в зависимости от условий эксплуатации. К примеру, установка может быть изготовлена с термообработкой и без нее, с теплоизоляцией и без.
Нефтегазовый сепаратор может быть оборудован штуцером для сброса воды.
Обязательными приборами в сепарационном оборудовании являются контрольно-измерительные приборы и аппарат управления. Таким образом, утечка вещества полностью исключена.
Российские производители выпускают НГС объемом от 1 до 100 м3.
| Тип аппарата | Конструктивная особенность | Объем, м3 | Давление, МПа | Диаметр, мм |
| Тип 1 | с узлами предварительного отбора газа (депульсаторами) | 6,3 - 150 | 0,6 - 6,3 | До 3400 |
| Тип 2 | без узлов предварительного отбора газа | 6,3 - 150 | 0,6 - 6,3 | До 3400 |
Комплектация
Газосепаратор состоит из:
- отбойника грубого разделения (для первичного разделения входящей жидкости);
- насадки для гашения пены (если она предусмотрена в данном виде емкости);
- перегородки, состоящей из просечно-вытяжных листов, расположенных вертикально (используется, чтобы выравнивать скорость потока в сосуде);
- струнных каплеуловителей для очистки газа;
- штуцеров для входа и выхода продуктов разделения;
- контрольно-измерительных приборов.
Кроме того при самостоятельной эксплуатации нефтегазового оборудования возможно подключение штуцеров контрольно-измерительных приборов и люк-лаза.
Материальное исполнение нефтегазосепаратора
Емкости изготавливаются из разных марок стали. Марка выбирается в зависимости от погодных условий, в которых будет эксплуатироваться НГС.
Если температура не ниже - 40 и не выше +40 градусов Цельсия, то в качестве материала берется сталь 09Г2С – 12 (Сталь конструкционная низколегированная для сварных конструкций).
Если температура не ниже -60 и не выше +40 градусов Цельсия, то выбирается сталь 09Г2С – 8 (Сталь конструкционная низколегированная для сварных конструкций).
Разрешено использовать другие марки стали с пределами использования по ГОСТ 26-291-94.
Также для изготовления отдельных частей цилиндра используются другие материалы. На это также влияют условия эксплуатации и желаемая стоимость.
Принцип работы. Способ очистки.
1 этап. Газонефтяная смесь поступает в сосуд через водный патрубок, а затем, меняя направление движения, через распределительные перегородки поступает в верхние и нижние наклонные желоба. На этом этапе происходит первичное отделение газа.
2 этап. Газ поступает в каплеотбойники – вертикальный и горизонтальный. На этом этапе происходит отделение капель жидкости от газа.
3 этап. Через патрубок газ поступает в газосборную сеть.
4 этап. Очищенное от газа вещество поступает в нижнюю часть нефтегазового сепаратора и направляется к насосам.
Если на конструкции установлена пеногасящая насадка, то нефть сначала поступает туда, а затем в насосы.
Уровень жидкости контролируется с помощью контрольно-измерительных устройств.
Таким образом, весь процесс очистки нефти можно разделить на секции в соответствии с конструкцией НГС:
- основная сепарационная, где реализуется первый этап;
- осадительная, где выделяется растворенный газ;
- секция сбора и вывода нефти, где реализуется четвертый этап;
- каплеуловительная.
Чтобы увеличить пропускную способность оборудования, перед входом жидкости в нефтегазосепаратор устанавливается депульсатор.
Сепарация считается эффективной, если содержание в газе капельной жидкости не более 0,05 кг/м3, а газа в нефти не более 0,5 м3/т.
Качество отделения газа от жидкости можно увеличить, если перемешать нефть, повысить температуру или снизить давление. Также применяют барботаж (отдувку) нефти предыдущим сепарированным газом.
Нефтегазовые сепараторы изготавливаются в соответствии с ТУ 3615-001-24009276-2015.
Условия эксплуатации
От условий эксплуатации зависит насколько долго и качественно будет работать нефтегазосепаратор, а также из каких материалов и с применением каких технологий он будет изготовлен.
Основные требования к условиям эксплуатации:
- температура не ниже -60 градусов по Цельсию;
- температура не выше +40 градусов по Цельсию;
- сила землетрясений не превышает 9 баллов;
- сила ветра не более V.
Нефтегазовые сепараторы подлежат осмотру не реже раза в два года. Также один раз в восемь лет оборудование подвергается гидравлическим испытаниям.
В табличке на корпусе НГС указывается следующие данные:
- номер, под которым она зарегистрирована;
- разрешенное давление;
- дата осмотров и гидроиспытаний.
Требования к сейсмичности площадки строительства
Благодаря передовым технологиям производства, сепарационное оборудование ООО НПО "Спецнефтемаш" способно выдерживать сейсмические воздействия вплоть до 9 баллов по шкале MSK-64. Проведенные в сентябре 2017 года испытания подтвердили это на практике, в результате чего был получен Сертификат Соответствия требованиям нормативных документов ГОСТ 30546.1-98, ГОСТ 30546.2-98, ГОСТ 30546.3-98.
Таким образом, если вам необходимо качественное сепарационное оборудование при строительстве объектов нефте-газовой промышленности в сейсмически активных районах, ООО НПО "СпецНефтеМаш" готов удовлетворить ваш спрос.
Проектирование и производство сепараторов НГС
При производстве нефтегазосепараторов используется листовая легированная сталь. Она имеет относительную химическую инертность и устойчива к агрессивной среде, высоким и низким температурам и высокому давлению и обладает высокой механической прочностью.
В ООО "НПО "Спецнефтемаш" применяются современные технологии и материалы при проектировании нефтегазового оборудования. Это позволяет изготовить НГС для различных условий эксплуатации, включая самые жесткие. Выпускаемое оборудование устойчиво к коррозии металла.
Сепараторы изготавливаются по базовой, отработанной годами, конструкции. Все базовые конструкции прошли испытания на экспериментальных стендах и являются бесшумными, не выделяют газ в зоне обслуживания, работают без вибрации.
ООО "НПО "Спецнефтемаш" производит оборудование много лет и может гарантировать качество, а также обеспечивать поставки не только по России, но и за рубеж.
ООО "НПО "Спецнефтемаш" изготавливает нефтегазовые сепараторы и предоставляет услуги по следующей примерной схеме:
- подписывается договор;
- заказчик предоставляет техническое задание (ТЗ);
- производятся расчеты согласно ТЗ;
- подготавливается конструкторская документация (полный комплект);
- изготавливается НГС;
- расчеты, документация и НГС передаются заказчику.
Блочное исполнение
По желанию клиента нефтегазовые сепараторы могут быть переданы в блочном исполнении. Блок включает в себя:
- сепаратор;
- трубопроводы с арматурой (запорной и регулирующей);
- металлоконструкцию;
- общую раму (на которой смонтирована конструкция).
Блок снабжается установками, обеспечивающим автоматическое управление:
- предохранительное устройство;
- прибор измерения и контроля уровня жидкости;
- прибор измерения и контроля температуры;
- прибор измерения и контроля давления.
Управление обеспечивается при подключении к микропроцессорным средствам автоматизации
Условное обозначение
Нефтегазовый сепаратор обозначают так НГС Х1- П- Х2-Х3-Х4- Т-И
Тип аппарата обозначается как Х1. Они бывают двух типов - I, II. Если установлена пеногасящая насадка, то добавляется буква П. Далее указывается условное давление Х2. Оно может находиться в пределах от 0,6 до 6,3 Мпа. Внутренний диаметр сепаратора – это Х3. Вид используемого металла указывается как Х4. Виды стали обозначаются как 1 (09Г2С-12) или 2 (09Г2С-8). Если указана буква Т, значит необходима термообработка, если необходимо теплоизолировать нефтегазосепаратор, то ставится буква И.
Пример условного обозначения при заказе нефтегазосепаратора:
Нефтегазосепаратор НГС I-1,6-1200-1 – тип I – с узлами предварительного отбора газа (депульсаторами), диаметром 1200, давление 1,6 Мпа, исполнение 1 – сталь 09Г2С-12, рабочая среда – нефть, попутный газ.
Пример обозначения:
Сепаратор нефти типа I на расчетное давление 2,5 МПа, рабочее давление 1,4 МПа, с внутренним диаметром 1600 мм, материального исполнения 1 - НГС-I-2,5(1,4) – 1600-1 ТУ3615-001-24009276-2015
НГС-I-П-2,5(1,4) – 1600-1 ТУ 3615-001-24009276-2015 - этот же сепаратор, но с пеногасящей насадкой (П):
НГС-I-П-2,5(1,4) – 1600-2 ТУ 3615-001-24009276-2015 - этот же сепаратор нефти, но материального исполнения 2.
НГС-I-П-2,5(1,4) – 1600-2-Т ТУ 3615-001-24009276-2015 - этот же сепаратор, но с термообработкой (Т):
НГС-I-П-2,5(1,4)– 1600-2-Т-И ТУ3615-001-24009276-2015 - этот же сепаратор, но с теплоизоляцией (И)
Информация для заказчиков
ООО "НПО "Спецнефтемаш" занимается производством высокопрочных нефтегазосепараторов, устойчивых к различным условиям эксплуатации по самым новейшим технологиям. Качество изготовления поддерживается на европейском уровне и не уступает зарубежным аналогам.
Купить готовый или заказать сепаратор нефтегазовый (НГС) в Каспийске можно сразу напрямую у производителя в ООО "НПО "Спецнефтемаш". Вся продукция производится по российским и международным стандартам качества.
Получить прайс-лист, задать вопросы по поводу способа, цен, качества нефтегазосепараторов можно по указанным телефонам на главной странице сайта.
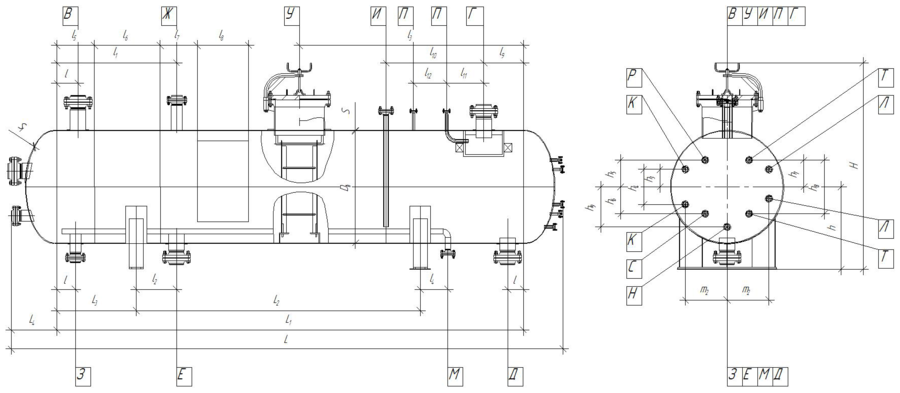
Типовые чертежи
ТЕХНИЧЕСКИЕ ХАРАКТЕРИСТИКИ
-
Технические характеристики сепаратора нефтегазового
Производительность, м3/час Давление, МПа Объем, м3 Масса, кг По нефти По газу Расчетное Рабочее 20-100 20700-74900 06-6,3 0,4-5,7 6,3 2690-6630 45-225 41400-149000 0,6-6,3 0,4-5,7 12,5 4410-14170 86-430 62000-224800 0,6-6,3 0,4-5,7 25 6630-27570 160-800 82900-220000 0,6-4,0 0,4-3,6 50 9490-29710 300-1500 124000-330000 0,6-4,0 0,4-3,6 100 15840-56580 450-2250 165000-440000 0,6-4,0 0,4-3,6 150 28100-99570 -
Таблица штуцеров сепараторов нефтегазовых
Обозначение Назначение Размеры в зависимости от объёма аппарата А Для входа нефтегазовой смеси 200–600 Б Вход газа 150–500 В Выход газа 200–600 Г Для выхода нефти 200–600 Д Для очистки 150–500 Е Для предохранительного клапана 200–600 Ж Для дренажа 200–600 З Для датчика уровня 150–500 И Для регулятора уровня 65 К Для сигнализатора уровня 50 Л Для пропарки 50 М Для термометра ртутного 50 Н Для дифманометра 50 П Для манометра М20х1,5 Р Для термометра сопротивления по запросу С Для указателя уровня 20–50 Т Люк-лаз 600 -
Основные параметры сепараторов нефтегазовых
Марка аппарата Объем, м³ Давление условное, МПа Кол-во каплеуловителей П Дв Sk Sd Объемная производительность по нефти, м³/ч по газу НГС-0,6-1200 6,3 0,6 8 1200 8 20+100 20700 НГС-1,0-1200 1,0 8 23300 НГС-1,6-1200 1,6 10 31400 НГС-2,5-1200 2,5 12 39000 НГС-4,0-1200 4,0 18 55000 НГС-6,3-1200 6,3 16 25 74900 НГС-0,6-1600 12,5 0,6 1600 8 45+225 41400 НГС-1,0-1600 1,0 8 46700 НГС-1,6-1600 1,6 12 62900 НГС-2,5-1600 2,5 16 78000 НГС-4,0-1600 4,0 22 110000 НГС-6,3-1600 6,3 32 149500 НГС-0,6-2000 25 0,6 24 2000 8 86+430 62200 НГС-1,0-2000 1,0 10 70000 НГС-1,6-2000 1,6 12 94400 НГС-2,5-2000 2,5 18 117200 НГС-4,0-2000 4,0 45 224800 НГС-6,3-2000 6,3 25 165000 НГС-0,6-2400 50 0,6 32 2400 8 160+800 82900 НГС-1,0-2400 1,0 10 93500 НГС-1,6-2400 1,6 14 125500 НГС-2,5-2400 2,5 20 156300 НГС-4,0-2400 4,0 30 220000 НГС-0,6-3000 100 0,6 48 3000 10 300+1500 124000 НГС-1,0-3000 1,0 12 140000 НГС-1,6-3000 1,6 18 188000 НГС-2,5-3000 2,5 25 234000 НГС-4,0-3000 4,0 40 33000 НГС-0,6-3400 150 0,6 64 3400 12 450+2250 165000 НГС-1,0-3400 1,0 14 187000 НГС-1,6-3400 1,6 20 251000 НГС-2,5-3400 2,5 28 312000 НГС-4,0-3400 4,0 50 440000 -
Габариты сепараторов нефтегазовых
Марка аппарата H h L L1 L2 НГС 0,6-1200 2173 818 6511 5400 3000 НГС1,0-1200 2173 818 6511 НГС1,6-1200 2177 820 6545 НГС2,5-1200 2181 822 6567 НГС4,0-1200 2281 828 6604 НГС6,3-1200 2428 838 6758 НГС0,6-1600 2743 1018 8190 6800 4300 НГС1,0-1600 2743 1018 8190 НГС1,6-1600 2751 1022 8220 НГС2,5-1600 2759 1026 8221 НГС4,0-1600 2891 1032 8361 НГС6,3-1600 2842 1042 8417 НГС0,6-2000 2893 1210 10101 8500 5000 НГС1,0-2000 2897 1212 10104 НГС1,6-2000 2901 1214 10133 НГС2,5-2000 2913 1220 10211 НГС4,0-2400 3013 1227 10320 НГС6,3-2000 3057 1251 10462 НГС0,6-2400 3545 1420 12889 11000 6000 НГС1,0-2400 3547 1420 12893 НГС1,6-2400 3555 1424 12944 НГС2,5-2400 3571 1432 12964 НГС4,0-2400 3687 1440 13128 НГС0,6-3000 3909 1726 15215 13000 8000 НГС1,0-3000 3917 1730 15229 НГС1,6-3000 3931 1738 15241 НГС2,5-3000 3945 1745 15320 НГС4,0-3000 4055 1760 15515 НГС0,6-3400 4306 1928 17770 15300 9000 НГС1,0-3400 4312 1927 17774 НГС1,6-3400 4328 1933 17826 НГС2,5-3400 4344 1941 17872 НГС4,0-3400 4458 1963 18061